Сдается коммерческая, 70 кв.м., -1/5 эт
Обзор№ - 1665
| Арендная плата (Долгосрочная) | 45 500 |
|---|---|
| Цена кв.м. в год | 7 800 |
| Коммунальные услуги включены | Нет |
| Целевое назначение (Гипернн) | торговля |
| Тип коммерческой | Торговое помещение |
| Площадь, кв.м. | 70 |
| Этаж | -1 |
| Этажность | 5 |
Адрес
| Населенный пункт | Кстово |
|---|---|
| Улица | микрорайон 6-й |
| Номер дома | 36 |
В избранное Аренда помещения
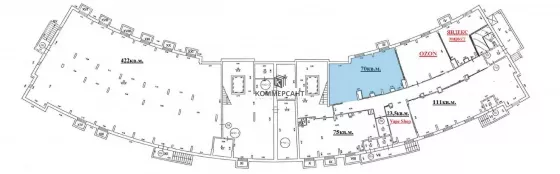
Подвал, помещение с выходом в общий коридор с арендаторами, где сейчас находятся ПВЗ (OZON и Яндекс Маркет), 2 окна, общий с/у на этаже, отопление централизованное, отдельный счетчик на 8кВт Выгодное расположение, большая проходимость и широкая аудитория. Близость транспортной развязки. Дефицит магазинов и бытовых услуг в ближайшем окружении.




