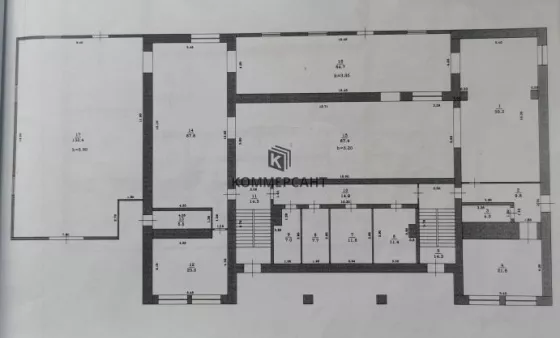
Продается коммерческая, 1132 кв.м., 1/2 эт
| Стоимость | 11 900 000   | 
|---|---|
| Возможное назначение | Другое | 
| Тип здания | отдельно стоящее здание | 
| Тип парковки | На улице | 
| Вход cian (avito) | Отдельный с улицы | 
| Ремонт | Требуется ремонт | 
| Планировка cian | Смешанная | 
| Отделка помещения коммерческая | Без отделки | 
| Право собственности | Посредник | 
| Целевое назначение (Гипернн) | производство | 
| Тип коммерческой | 12 | 
| Площадь, кв.м. | 1132 | 
| Этаж | 1 | 
| Этажность | 2 | 
| Класс здания | D | 
| Населенный пункт | Балахна | 
|---|---|
| Улица | улица Энгельса | 
| Номер дома | 107А | 
В продаже отдельно стоящее здание бывшего детского сада, расположенное на земельном участке площадью 0,48 га (полностью огорожен). Два этажа + небольшой подвал.
Здание полностью обследовано, сделана строительная экспертиза, вычищено от мусора и подготовлено для восстановления под нужды нового собственника. На участке расположены центральные водопровод и канализация. Установлена своя скважина. Подведено 100 кВт электричества. Получены ТУ на газификацию.
Отличное месторасположение в г. Балахна, рядом с ж/д станцией. Напротив участка большая парковочная зона для гостевых авто.
Возможное использование - склад-офис, легкое производство, открытое складирование, оздоровительный центр, медицинский центр, центр реабилитации, дом престарелых, частный детский сад или школа, и т.д.
Собственник - физлицо.
                                    





























