Сдается коммерческая, 553.8 кв.м., 2/ эт
| Арендная плата (Долгосрочная) | 5 538 |
|---|---|
| Цена кв.м. в год | 120 |
| Коммунальные услуги включены | Нет |
| Тип здания | Жилой дом |
| Тип аренды | Прямая |
| Ремонт | Офисная |
| Отделка помещения коммерческая | Офисная |
| Сумма залога, руб | 4822800 |
| Право собственности | Собственник |
| Целевое назначение (Гипернн) | офис |
| Ремонт коммерческая | евро |
| Тип коммерческой | Помещение свободного назначения |
| Площадь, кв.м. | 553.8 |
| Этаж | 2 |
| Населенный пункт | Нижний Новгород |
|---|---|
| Район города | Нижегородский |
| Улица | набережная Верхне-Волжская |
| Номер дома | 2Б |
Сдается в аренду офисное помещение премиального уровня в центре города в непосредственной близости от Нижегородского Кремля и одной из главных достопримечательностей города Чкаловской лестницы. В шаговой доступности находятся ключевые административные учреждения города и области. Очень высокие пешеходный и автомобильный трафики.
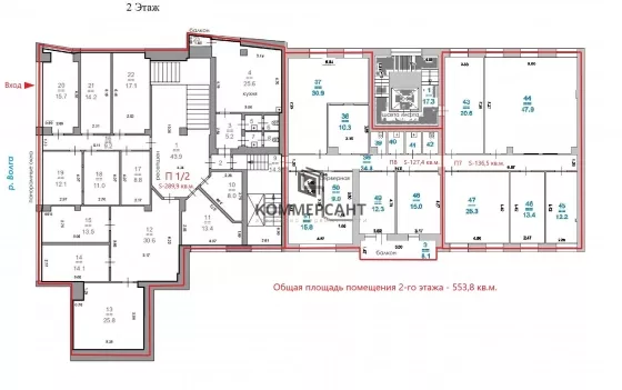
Помещение расположено на 2-ом этаже и имеет два входа: один вход с Красной линии и запасной выход с торца здания.
Кабинетно-коридорная планировка с зоной ресепшен, гостевым холлом и отдельными кабинетами, общим количеством 23 шт. (метраж от 10,3 кв.м. до 30,9 кв.м.), а также на этаже расположены: оборудованная кухня площадью 25,6 кв.м., серверная и 4 санузла.
Обеспечено наличие всех необходимых инженерных систем, отвечающих СНиП.
При необходимости можно сделать более открытую планировку.
Есть возможность аренды парковочных мест на подземном паркинге.
Готовы рассмотреть ценовое предложение от арендатора.
Также есть возможность аренды помещения площадью 250 кв.м.на 1-ом этаже.




























